Bungalow for sale, Longueuil (Saint-Hubert)

Vendu

5075, Rue Gilbert

Longueuil (Saint-Hubert)

bedroom(s) 3 bathroom(s) 1 bathroom(s) 9
Photo Michelle McCurdy

Michelle McCurdy

Residential and Commercial Real Estate Broker

514 979-9834

Photo Marie-Eve Dubois

Marie-Eve Dubois

Residential Real Estate Broker

514 267-1577

Centris #
#19757547
Property type
Bungalow
Building style
Detached
Construction year
1967
Land area
501.70 m²
Move-in date
60 days

Characteristics

Driveway
Asphalt
Heating system
Air circulation
Water supply
Municipality
Heating energy
Wood , Electricity
Equipment available
Central air conditioning
Available services
Fire detector
Equipment available
Ventilation system
Foundation
Poured concrete
Hearth stove
Wood burning stove
Proximity
Highway , Daycare centre, Park - green area, Bicycle path, Elementary school, High school, Public transport
Siding
Brick
Basement
6 feet and over , Partially finished
Parking
Outdoor (3)
Sewage system
Municipal sewer
Landscaping
Fenced
Roofing
Elastomer membrane
Topography
Flat
Zoning
Residential

Dimensions

Front of the building
11.60 m
Depth of the building
8.19 m
Front of the land
18.29 m
Depth of the land
27.43 m
Land area
501.70 m²

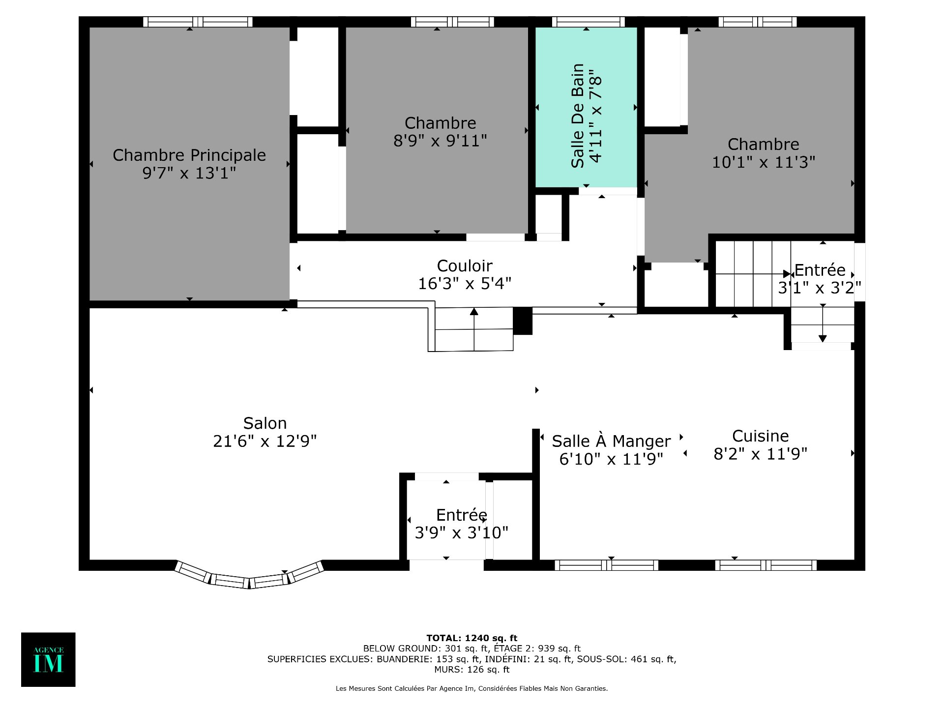
Room Dimensions

Rooms
9 rooms    |    3 bedroom(s)    |    1 bathroom(s)    |    0 washroom(s)
Living room
Ground floor
17 x 11.6 ft.
Flooring : Floating floor
Kitchen
Ground floor
15 x 11.6 ft.
Flooring : Linoleum
Primary bedroom
Ground floor
13.1 x 9.9 ft.
Flooring : Floating floor
Bedroom
Ground floor
9.9 x 8.7 ft.
Flooring : Floating floor
Bedroom
Ground floor
9.10 x 9.8 ft.
Flooring : Floating floor
Bathroom
Ground floor
7.3 x 4.9 ft.
Flooring : Ceramic tiles
Family room
Basement
33 x 12.8 ft.
Flooring : EPOXY
Laundry room
Basement
12.2 x 10 ft.
Flooring : EPOXY
Workshop
Basement
22.6 x 11 ft.
Flooring : EPOXY

Inclusions

Light fixture, dishwasher, basement Refrigerator, washer, dryer, kitchen stove.

Exclusions

Blinds, curtain rods, curtains

Addenda

Charming family home in peaceful St-Hubert! Semi-renovated with great potential, it offers 3 bedrooms, a full bathroom, and a versatile basement that can be finished to your needs. Enjoy a spacious lot, perfect for kids, pets, or future outdoor projects. Bright, warm, and ideally located near schools, parks, shops, and transit -- a home full of comfort and possibilities!

- This property offers 3 spacious bedrooms, ideal for a family or a home office.
- A well-maintained full bathroom provides comfort and functionality.
- The unfinished basement offers tremendous potential: the space could accommodate an additional bedroom, a family room, or extra storage to suit your needs.
- The large backyard provides privacy, greenery, and multiple possibilities for development (pool, garden, play area, etc.).

About this property

Welcome to this delightful family home in peaceful St-Hubert! Semi-renovated and brimming with potential, it offers 3 bedrooms, a full bathroom, and a versatile basement ready to become your dream family room, cozy home office, or an extra bedroom. The spacious lot is a true highlight--perfect for kids' playtime, pets to roam, or creating your own backyard oasis. Bright, warm, and welcoming, this home is ideally located near schools, parks, shops, and transit. A wonderful blend of comfort, convenience, and possibilities--come fall in love!

Sale with exclusion(s) of legal warranty - See listing broker(s).
Information request

Financial details

Annual
Monthly
Municipal evaluation (2025)
Building
$ 206,000
Land
$ 212,800
Taxes
Municipal Taxes (2025)
$ 2,698 $ 225
School taxes (2025)
$ 286 $ 24

You like this property?Share it!

New properties on the market that might interest you

Looking for the property of your dreams? It's right here, and call us to find out more or schedule a visit!

×

Your cookie preferences

We use cookies to optimize our website and collect usage statistics.

Cookie policy