Vendu
14692, Boul. Gouin O., app. 201
Montréal (Pierrefonds-Roxboro)

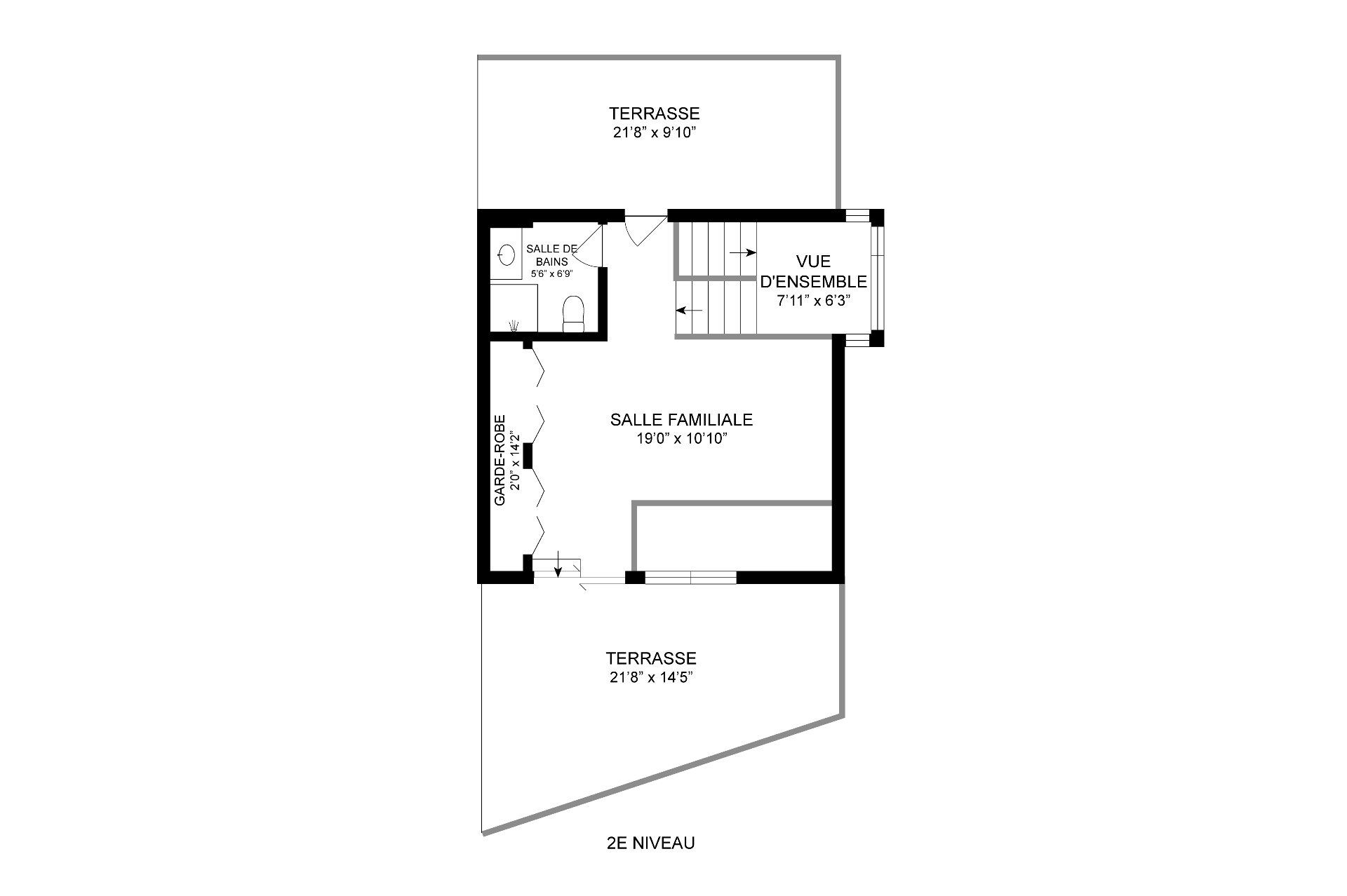
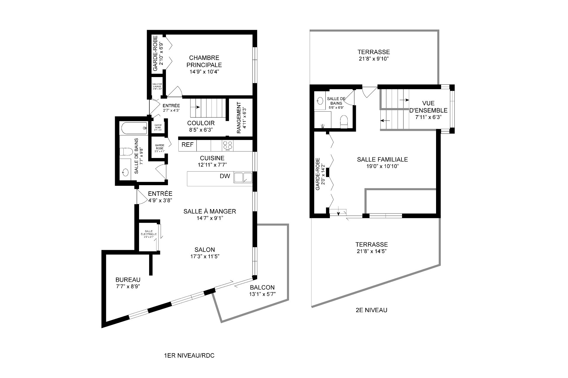
Magnifique Penthouse sur 2 Étages proche du REM! Construction 2017 au dernier étage en coin, orientation Ouest, vue spectaculaire sur la Rivière des Prairies. Conditions impeccables, matériaux de haute qualité, 2 chambres, 1 bureau, 2 salles de bain, 2 terrasses privées ainsi qu'un balcon en coin. 1,250 pieds carrés bruts total. Comptoirs en Quartz, 2 thermopompes. Accès rapide aux transport en commun et au train de banlieue. Proximités commerces (épiceries, pharmacies). Juste en face, la promenade du parc Ménard le long de la rivière, 1 garage intérieur est inclus. Vivez le bord de l'eau, une opportunité paisible et verdoyante à saisir!
Demande d'informationVous cherchez la propriété de vos rêves? C’est par ici, et appelez-nous pour en savoir davantage ou planifier une visite !