Loft/Studio à vendre, Montréal (Le Sud-Ouest)

Vendu

765, Rue Bourget, app. 131

Montréal (Le Sud-Ouest)

chambre(s) 1 salle(s) de bain 1 salle(s) de bain 5
Photo Katia Samson

Katia Samson

Courtier immobilier résidentiel et commercial agréé DA

514 939-3163

Photo Thomas Saliou

Thomas Saliou

Courtier immobilier résidentiel

514 778-5709

No Centris
#28693759
Type de propriété
Loft/Studio
Style de bâtiment
Jumelé
Année de construction
2008

Caractéristiques

Restrictions/Permissions
Animaux permis
Armoires
Mélamine
Mode de chauffage
Plinthes électriques
Facilité d'accès
Ascenseur
Services disponibles
Chute à déchets , Salle d'exercice, Piscine extérieure, Espace de rangement intérieur, Terrasse sur le toit
Approvisionnement en eau
Municipalité
Énergie pour le chauffage
Électricité
Équipement disponible
Climatiseur mural , Échangeur d'air, Interphone, Porte de garage électrique
Fenêtres
Aluminium
Garage
Chauffé , Intégré
Piscine
Chauffée
Proximité
Autre , Autoroute/Voie rapide, Cegep, Hôpital, Parc-espace vert, Piste cyclable, École primaire, École secondaire, Transport en commun, Université
Revêtements
Béton
Stationnement
Au garage (1)
Système d'égouts
Municipal
Aménagement du terrain
Paysager
Type de fenêtre
Manivelle
Zonage
Résidentiel

Dimensions

Superficie habitable
547.90 pi. ca.

Particularités des pièces

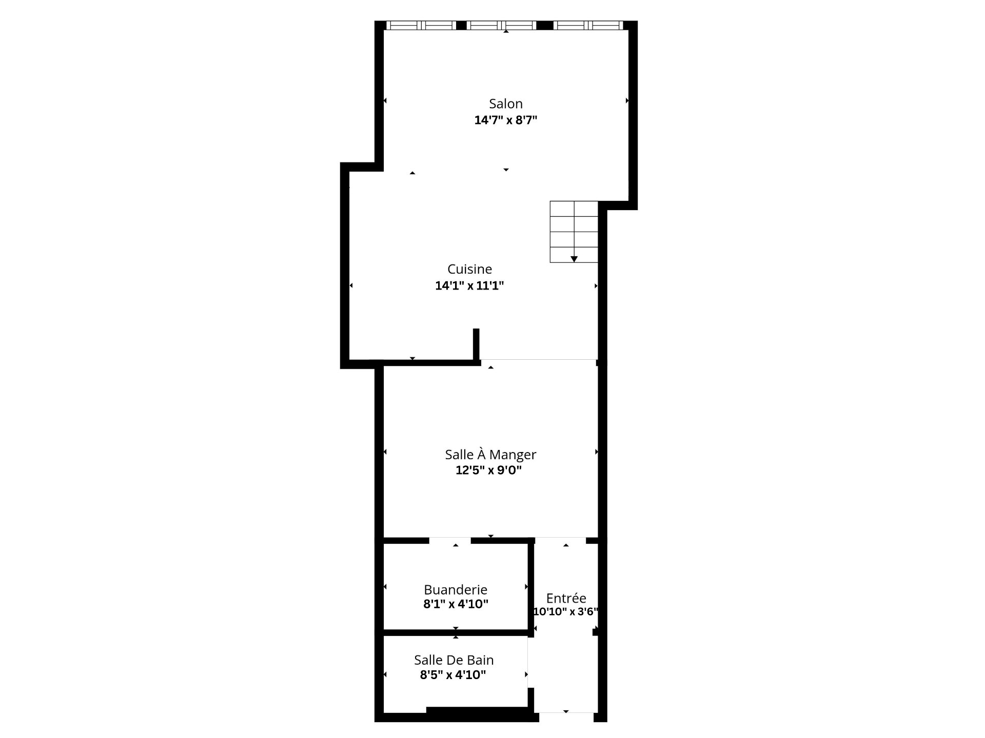
Pièces
5 pièces    |    1 chambre(s)    |    1 salle(s) de bain    |    0 salle(s) d'eau
Salon
Rez-de-chaussée
14.7 x 8.7 pi.
Revêtement : Bois
Cuisine
Rez-de-chaussée
14.1 x 11.1 pi.
Revêtement : Bois
Salle à manger
Rez-de-chaussée
12.5 x 9.0 pi.
Revêtement : Bois
Salle de bains
Rez-de-chaussée
8.5 x 4.10 pi.
Revêtement : Céramique
Salle de lavage
Rez-de-chaussée
8.1 x 4.10 pi.
Revêtement : Céramique
Hall d'entrée
Rez-de-chaussée
10.10 x 3.6 pi.
Revêtement : Bois
Chambre à coucher
Autre
12.5 x 12.2 pi.
Revêtement : Céramique
Penderie (Walk-in)
Autre
12.10 x 7.0 pi.
Revêtement : Céramique

Inclusions

cuisinière, lave-vaisselle, four à micro-ondes, laveuse, unité de climatisation murale, luminaire de la cuisine

Exclusions

Sécheuse, réfrigérateur

Addenda

Découvrez cette spectaculaire unité au prestigieux Loft Impérial (Phase 2), où volume, lumière et caractère architectural se rencontrent. Avec ses plafonds impressionnants de 14 pi 8 po, ses planchers de bois et ses majestueuses poutres de béton, ce loft incarne parfaitement l'esthétique industrielle emblématique du Sud-Ouest. Le type d'espace que l'on imagine immédiatement lorsqu'on pense aux lofts recherchés de St-Henri et à la vie de quartier près du marché Atwater.

La mezzanine entièrement fonctionnelle de 228 pi², accessible par un escalier sur mesure et offrant un dégagement de 6pi 3po, permet d'y aménager une chambre, un bureau ou un espace polyvalent selon vos besoins.

Les aires communes sur le toit rehaussent véritablement l'expérience : cuisine complète, table de billard, foyer, WiFi, piscine extérieure, grande terrasse avec BBQ et salle d'entraînement moderne et entièrement équipée.

Un espace pensé pour se détendre, recevoir et profiter pleinement de la vie urbaine. Un mode de vie urbain distinctif dans un immeuble emblématique.

Casier Inclus R-56

Stationnement Intérieur S-97

Cadastre des parties communes (divise, quote-part 0,3871 %) :4144965, 4144968, 4673331, 4673539, 4673540, 4673541, 5138026, 5140255, 5140256, 5140257, 5140258, 5152925, 5152926, 5152927, 5152928

L'article 16 du Règlement sur les conditions d'exercice d'une opération de courtage, sur la déontologie des courtiers et sur la publicité prévoit ceci :

«Le titulaire de permis qui représente une partie doit informer, dans les meilleurs délais, toute autre partie qui n'est pas représentée du fait qu'il doit protéger et promouvoir les intérêts de la partie qu'il représente tout en accordant un traitement équitable à la partie qui n'est
pas représentée.»

Pour prendre une décision éclairée, vous êtes par la présente informé des choix qui s'offrent à vous, soit :
a) faire affaire directement avec le courtier du vendeur et recevoir un traitement équitable;
ou
b) faire affaire avec votre propre courtier qui veillera à la protection de vos intérêts.

Dans l'éventualité que vous choisissez de faire affaire avec votre propre courtier, il est souhaitable qu'il ou elle soit présent lors de la visite des lieux.

À propos de cette propriété

Découvrez cette superbe unité au Loft Impérial (Phase 2), où volume, lumière et caractère se rencontrent. Plafonds de 14 pi 8 po, planchers de bois et poutres de béton évoquent l'esthétique industrielle emblématique du Sud-Ouest et l'esprit des lofts recherchés de St-Henri, près du marché Atwater. La mezzanine fonctionnelle de 228 pi² (6 pi 3 po de dégagement), accessible par un escalier sur mesure, permet d'aménager chambre, bureau ou espace polyvalent. Aires communes sur le toit : cuisine, billard, foyer, WiFi, piscine extérieure, grande terrasse BBQ et gym. Casier et stationnement intérieur inclus.

Demande d'information

Détailsfinanciers

Annuel
Mensuel
Évaluation municipale (2026)
Bâtiment
327 300 $
Terrain
46 500 $
Taxes
Taxes municipales (2026)
2 350 $ 196 $
Taxes scolaires (2026)
276 $ 23 $
Dépenses et énergie
Frais de copropriété
5 076 $ 423 $
Coût d'énergie
1 144 $ 95 $

Vous aimez cette propriété?Partagez-la!

Nouvelles propriétés sur le marché qui pourraient vous intéresser

Vous cherchez la propriété de vos rêves? C’est par ici, et appelez-nous pour en savoir davantage ou planifier une visite !

×

Vos préférences en matière de cookies

Nous utilisons des cookies pour optimiser notre site web et collecter des statistiques d'utilisation.

Politique en matière de cookies